Property Search
12029 CR 3612Murchison, TX 75778
Due to the health concerns created by Coronavirus we are offering personal 1-1 online video walkthough tours where possible.


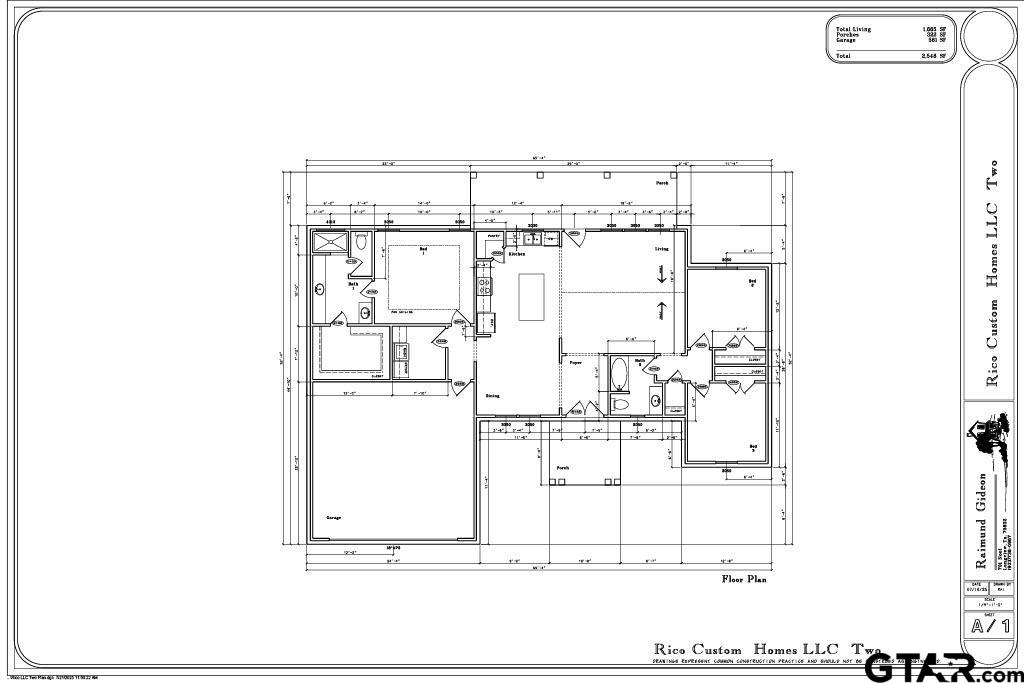
Dreams are being built right here — and yours could be next. Currently under construction with an estimated completion in October 2025, this thoughtfully designed 3-bedroom, 2-bath custom home is the perfect canvas for modern living. The striking exterior sets the tone for what’s to come: clean lines, bold curb appeal, and timeless finishes. Inside, an open-concept layout offers seamless flow from the spacious living room—complete with a stylish electric fireplace—into the gourmet kitchen featuring quartz countertops, custom cabinetry, and durable vinyl plank flooring throughout. The primary suite is privately tucked away, offering peace and quiet after a long day. Every room is bathed in natural light, highlighting the elegant fixtures and designer touches that elevate the home’s modern aesthetic. The bathrooms and laundry area are finished with luxurious porcelain tile, blending beauty with low-maintenance ease. There’s still time to add your personal touch and make this home truly yours! Don’t miss this opportunity—contact us today to learn more or schedule a tour of the site.
| 4 weeks ago | Listing updated with changes from the MLS® | |
| 3 months ago | Listing first seen on site |
The data relating to real estate for sale on this website comes in part from the Internet Data Exchange (IDX) of the Greater Tyler Association of REALTORS Multiple Listing Service. The IDX logo indicates listings of other real estate firms that are identified in the detailed listing information. The information being provided is for consumers' personal, non-commercial use and may not be used for any purpose other than to identify prospective properties consumers may be interested
Last checked - 2025-11-05 11:34 AM UTC
Did you know? You can invite friends and family to your search. They can join your search, rate and discuss listings with you.